
Cessna Residential and Commercial Building
Helping businesses take flight.
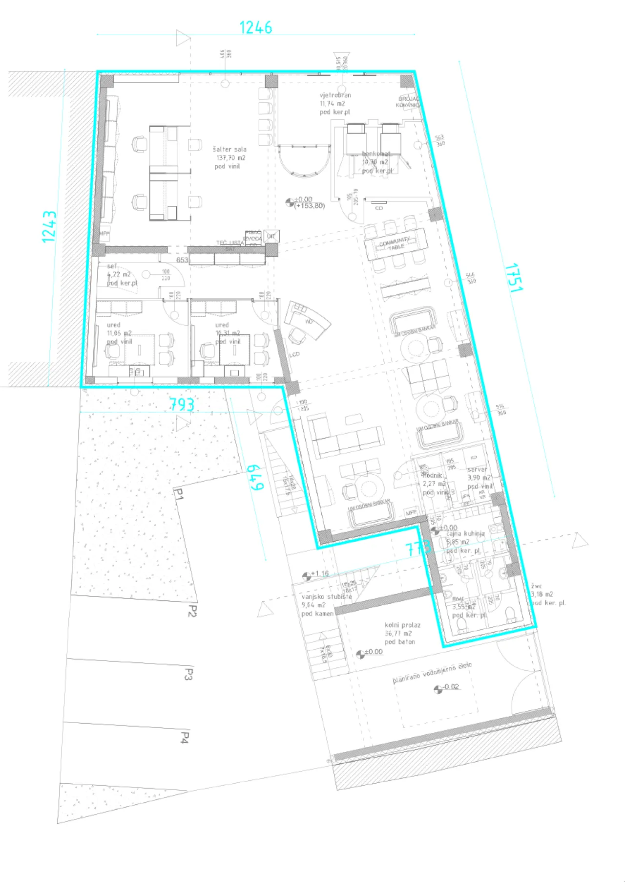
Construction of a residential and commercial building following removal of an existing structure.
Total building area: 881 m2 (9,483 sq ft).
Design Task
Design development of a residential and commercial corner building in the contemporary style with three commercial spaces and five apartments.
Challenges
Demanding blending of the corner building in the context of the listed heritage zone of the City of Požega with adaptation of the ground-floor business premises to bank requirements (a vault, an ATM zone, intrusion protection, etc.) Resolving technical issues associated with execution of the new building adjacent to neighbouring structures due to the risk of their collapse.
Project Progress
Commenced in February 2017.
Preliminary, and general designshave been developed along with thefire protection study, the constructionpermit was obtained, and servicesof professional supervision andsupervising engineer were provided.
Completed and opened in October 2020.
Before Cessna
Facade render
Square footage
Cessna Residential and Commercial Building
Trusted by the world-class companies
